Our facilities

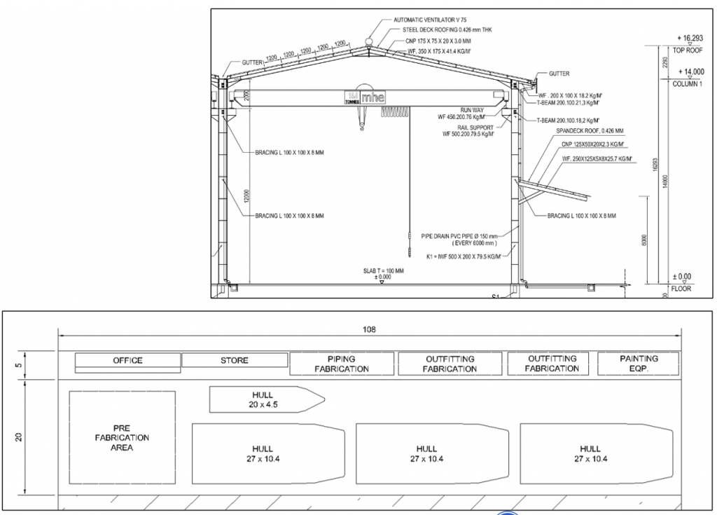
Building hall
Fully integrated with overhead cranes, offices, stores and workshops

Workshops
Direct access to the building hall for streamlined flow of materials

Waterfront
100-meters long jetty with crane for launching and servicing, shore connection and fire-fighting

Enclosed warehouse
2,000 m² covered area with office and good natural ventilation

Building hall capacity
- Up to 6 vessels delivered per year
- No weather impact with fully covered fabrication area
- Aluminum and steel fabrication
- Fully integrated fabrication within one building
- Overhead cranes: 5-tons and 10-tons
- Dimension: 108 x 25 m
- 10.5m clearance under hook
- Outdoor concrete for good housekeeping
